Queen Sands Villas

Award-winning coastal villas in Kissonerga featuring Italian-made interiors, private pools, and direct beach access within a sleek, glass-fronted design.

...
Location
Kissonerga, Paphos
Collaborators
George Kalaitzides, Atalya Grinberg, Vered Asterin Peremen
Client
AG&G Luxury Homes Ltd
Year completed
2021

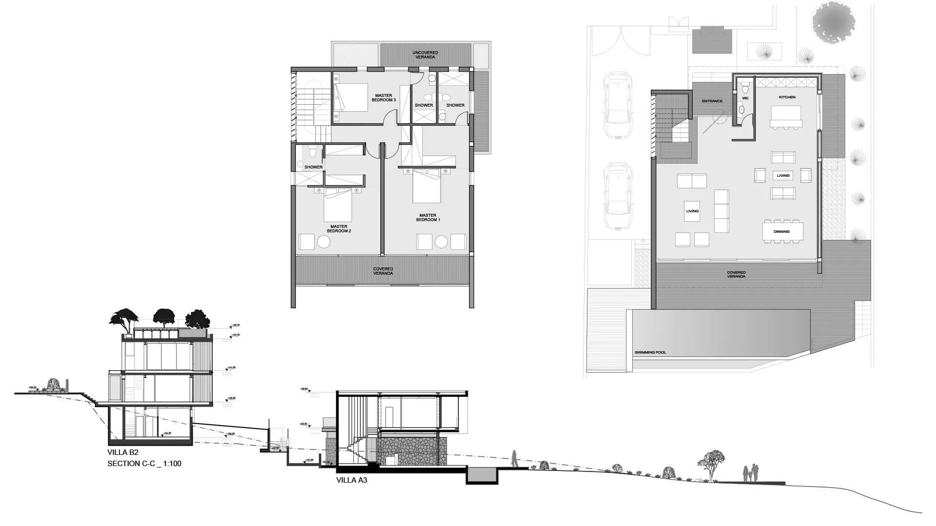
Located in Kissonerga, Queens Sands Villas is an award-winning retreat where glass facades meet the coast. These villas blend clean lines with the landscape, offering private, sun-drenched sanctuaries with panoramic sea views.

The open-plan interiors feature high-quality materials and bespoke finishes, including Italian-made kitchens and spacious bedrooms designed for premium comfort. This design-led approach, which earned the Bronze A’ Design Award 2019, seamlessly integrates private pools and landscaped gardens with direct beach access. By balancing architectural elegance with the rugged beauty of the Paphos coast, the project offers a sophisticated lifestyle that prioritizes both natural beauty and modern living standards.

Learn more

Translating vision into structure.

The studio is currently evaluating new commissions for bespoke private residences and large-scale developments across Cyprus.

Inquire about a project