Cliff 4

A residence in Geroskipou featuring fluid, curved architecture, private gardens, and an elevated design that blends lightness with modern luxury.

...
Location
Geroskipou, Paphos
Client
JAS Projects Ltd
Status
Planning permit granted

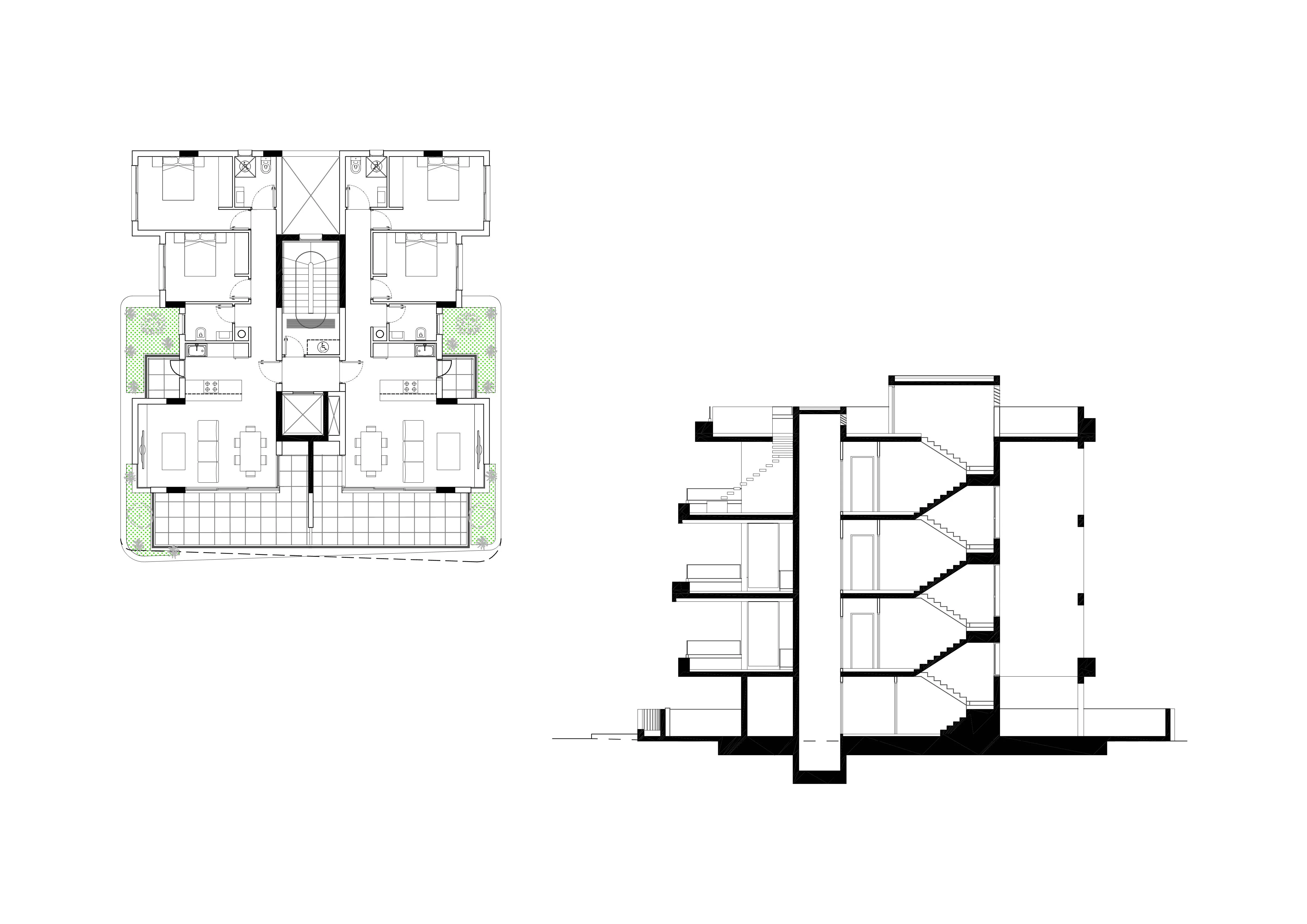
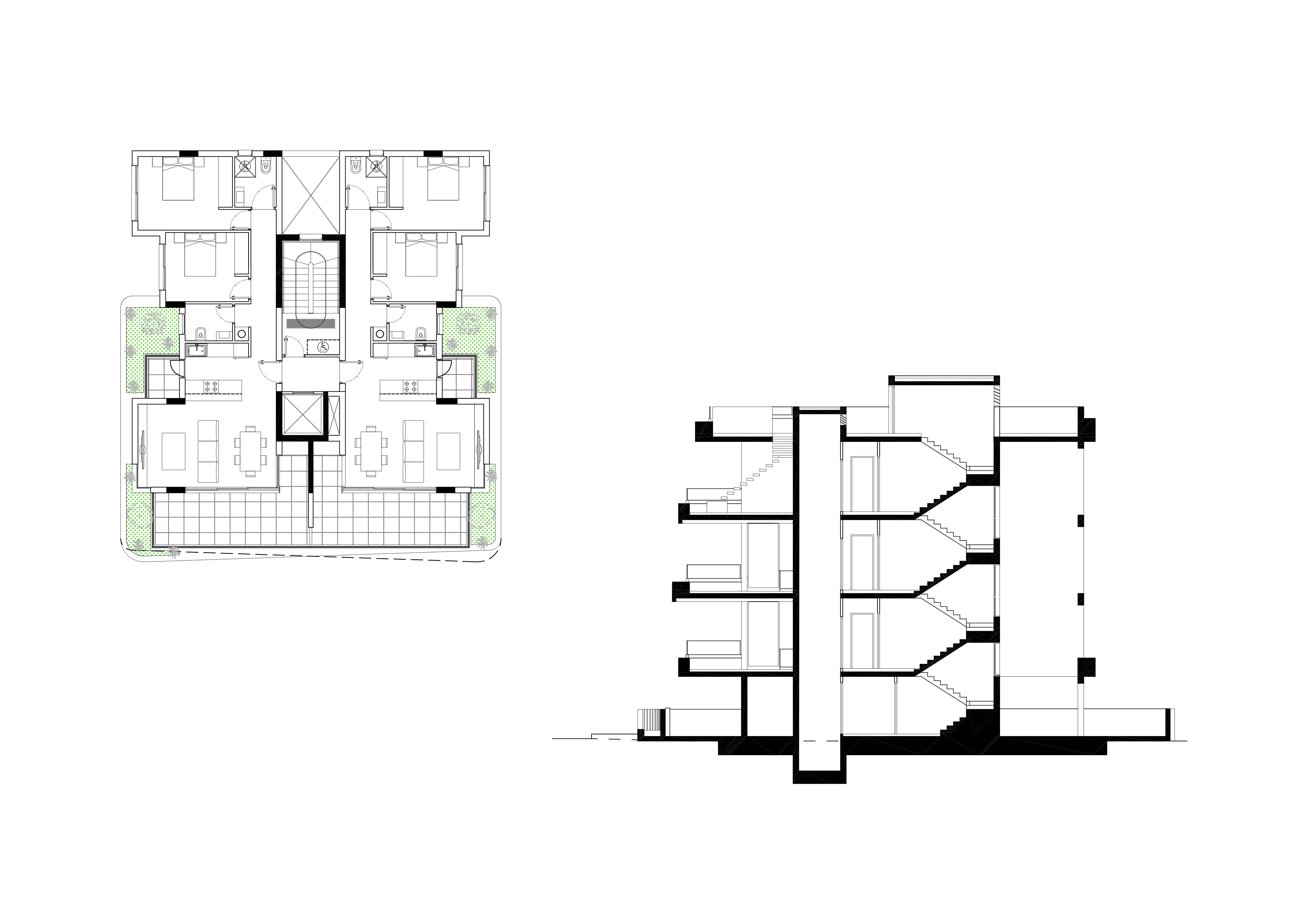
Located in Geroskipou, Cliff 4 is a residence defined by graceful, curved forms. The building’s fluid lines wrap around its structure to create a sense of dynamic movement, directly reflecting a vision for a distinctive and modern aesthetic.

The architecture is elevated on piloti, creating a visually light ground level that elegantly frames the entrance and parking. Each of the six two-bedroom apartments prioritizes a connection to the outdoors, featuring secluded private gardens that serve as personal retreats. For the top-floor units, private roof gardens offer an elevated experience with expansive views. By balancing these bold, sculptural curves with functional transparency and integrated greenery, the project provides a tranquil living environment that is both innovative and welcoming.

Translating vision into structure.

The studio is currently evaluating new commissions for bespoke private residences and large-scale developments across Cyprus.

Inquire about a project