XDA Residence

A raw stone and concrete retreat in Tsada, carved into the hillside to frame expansive Mediterranean vistas through bold, geometric apertures.

Exterior 3d view
Location
Tsada, Paphos
Client
Private
Status
Building permit granted

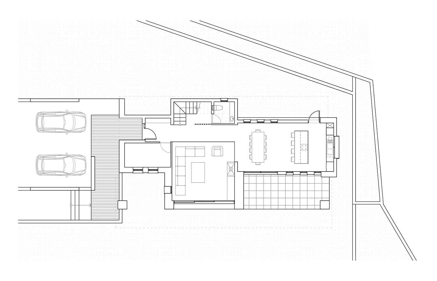
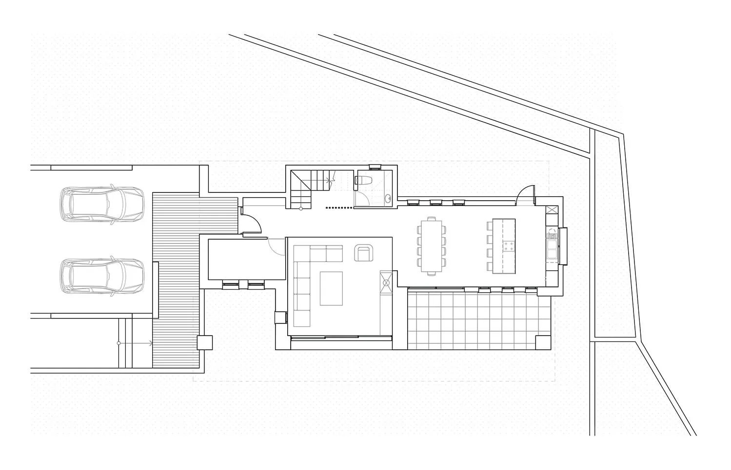
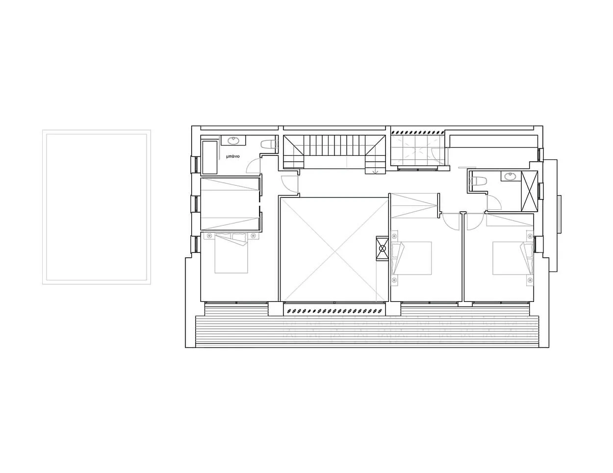
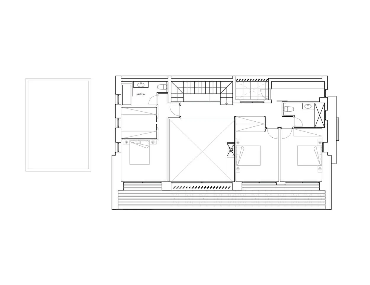
Perched on the edge of Tsada, this residence frames sweeping views of the Mediterranean and Paphos. The design follows the site’s natural contours, using a bold concrete volume to capture the horizon above a grounded, protective stone base.

By utilizing raw stone and concrete, the architecture establishes a tactile bond with the rugged environment. The rectangular concrete frame of the upper level provides a focused lens for the sea vistas, while the sturdy stone walls below encase the living spaces in organic warmth. This interplay of heavy, natural materials and sharp geometric lines ensures the home feels like a permanent fixture of the hillside, offering a sophisticated retreat that honors its spectacular location through structural honesty and site-specific integration.

Watch video animation

Translating vision into structure.

The studio is currently evaluating new commissions for bespoke private residences and large-scale developments across Cyprus.

Inquire about a project