GM Residence

A minimalist sanctuary where sleek glass meets organic stone, blending airy, open-plan social spaces with quiet, light-filled retreats.

Exterior 3D
Location
Mesa Chorio, Paphos
Client
Private
Status
Under construction

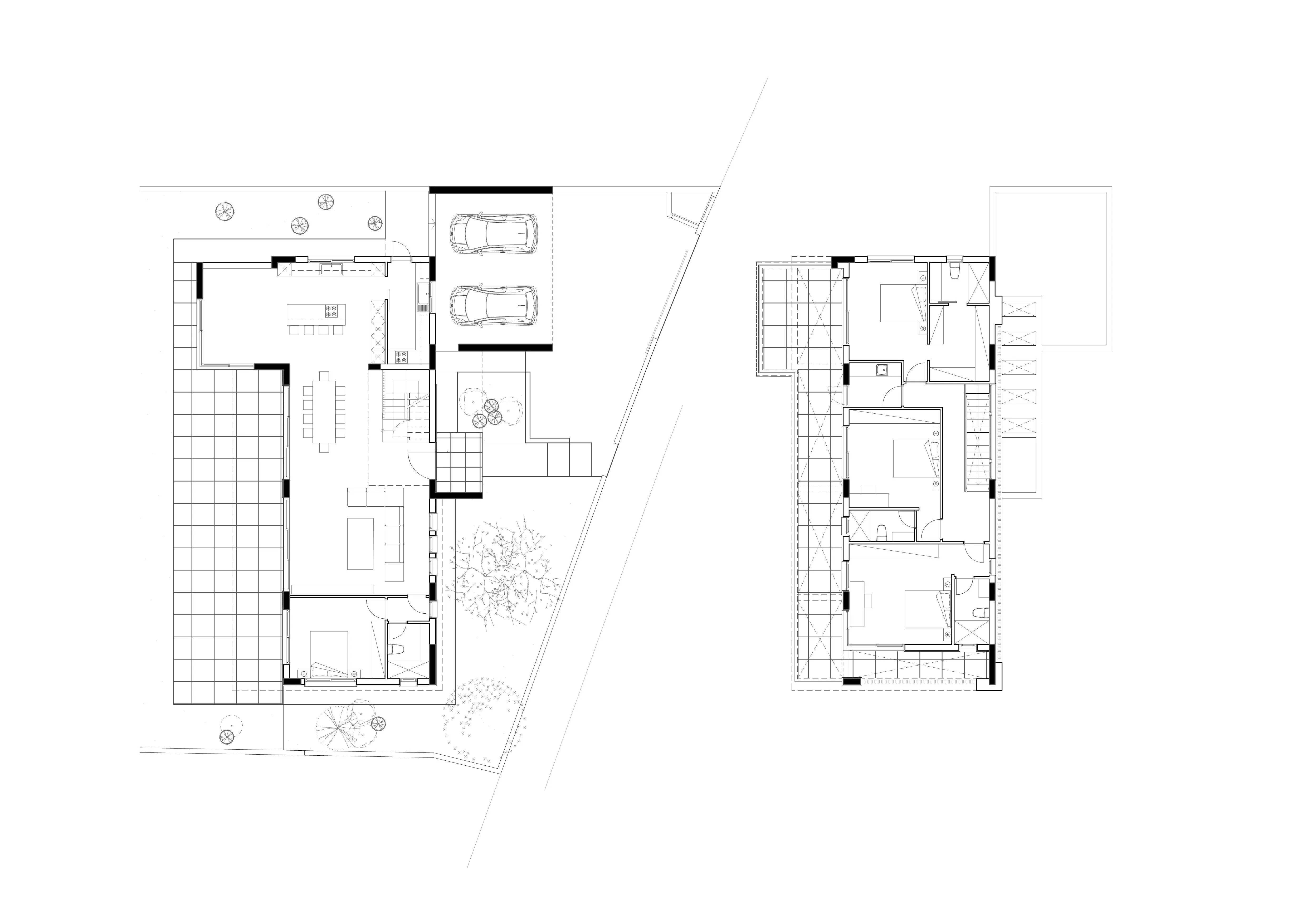
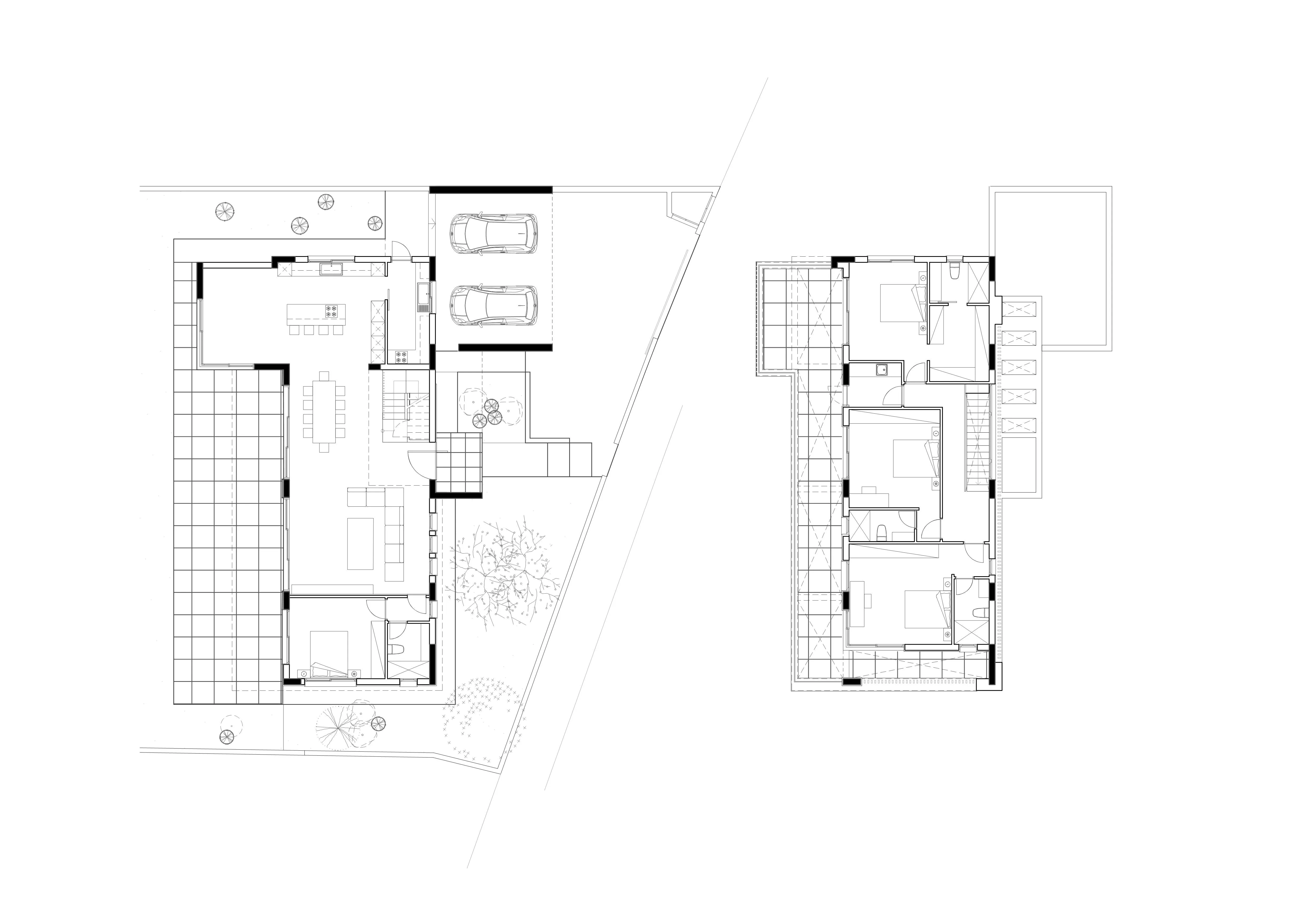
This minimalist residence redefines modern living through clean lines and expansive glazing. Sleek white facades pair with natural stone to create a harmonious blend of contemporary precision and organic warmth, inviting light into every corner.

The open-plan layout ensures natural light permeates the interior effortlessly, fostering a sense of fluid connectivity. Inside, the focus shifts to a refined simplicity where high-end finishes accentuate the spacious, functional living areas. While the social zones are designed for engagement and relaxation, the private quarters are tucked away as tranquil sanctuaries. This balance between transparency and retreat creates a dwelling that is as much a gallery for light as it is a home for comfort.

Translating vision into structure.

The studio is currently evaluating new commissions for bespoke private residences and large-scale developments across Cyprus.

Inquire about a project